Hosteria Maria Rafaela / AD+ Arquitectura
Sup. cubierta:206 m2 Sup. Semi cubierta:20 m2 Ubicación:Monte Grande, Buenos Aires, Argentina Año:2015 Empresa: AD+ Arquitectura Arquitectos: Leandro Gallo y Sebastian Garayo En las afueras de Buenos Aires, en un barrio residencial de casas bajas, se implanta esta hostería que pretende alojar viajantes que provienen del aeropuerto y de actividades […]
Compartir







Sup. cubierta:206 m2
Sup. Semi cubierta:20 m2
Ubicación:Monte Grande, Buenos Aires, Argentina
Año:2015
Empresa: AD+ Arquitectura
Arquitectos: Leandro Gallo y Sebastian Garayo
En las afueras de Buenos Aires, en un barrio residencial de casas bajas, se implanta esta hostería que pretende alojar viajantes que provienen del aeropuerto y de actividades aledañas.





El lote, flanqueado por medianeras de ladrillo y una abundante vegetación, cuenta con una casona del mismo material de un alto valor patrimonial. La homogeneidad material, cromática y formal del barrio dispararon numerosas ideas.




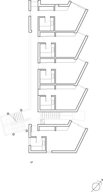
El edificio se presenta como un cuerpo principal en planta alta, compuesto de 5 habitaciones facetadas que favorecen la buena orientación norte como así también un resguardo respecto de la calle, otorgando una mejor privacidad a los huéspedes. La planta baja sirve como salón de usos múltiples y ofrece una relación directa con el parque tanto por su transparencia como por su forma plástica. Por último, la azotea accesible aprovecha la gran apertura visual que ofrece la escala de su entorno y acentúa la relación con la gran copa de un árbol existente.





Se decidió ubicar el edificio hacia un costado del lote, favoreciendo la relación con la “plaza” existente, un vacío, que haga las veces tanto de acceso como de vínculo entre lo nuevo y lo anterior. Hacia el otro, un espejo de agua forma parte de un patio íntimo que limita con el borde del terreno. El mismo tiene contacto visual y tangible con la terraza ya que actúa como colector del agua de lluvia de la azotea sumando así un estímulo auditivo al recorrido.

Dadas las fuertes preexistencias, se proponen nuevos diálogos. Lógicas invertidas. Contradicciones. No solo tensiones temporales entre los dos volúmenes, sino también dentro del propio edificio. Las características, que a priori resultan incompatibles, se potencian. Lo pesado se eleva y el aire sostiene a la masa. La curva esquiva la recta y la luz a la sombra. Los materiales opuestos se conjugan, vidrio – ladrillo, aluminio y madera. Tesis-antítesis.
































